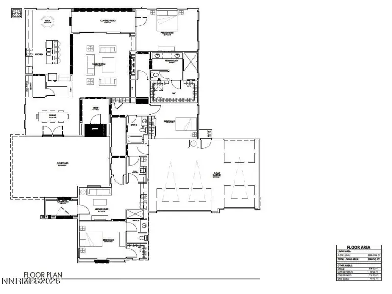
Welcome to the Luken plan, a thoughtfully designed single-story home, located in the desirable Bramwell Estates community in the Johnson Lane area of Minden, Nevada. Set on a generous one-acre homesite, this residence combines modern functionality, refined finishes, and the wide-open beauty of Carson Valley living. The Luken plan offers an intelligent split-bedroom layout with approximately 4 bedrooms and 3 bathrooms, designed to balance everyday comfort with effortless entertaining. At the heart of the home, a spacious great room anchors the open-concept living space, featuring a cozy gas fireplace and seamless flow to the dining area and kitchen. The well-appointed kitchen showcases premium finishes including granite or quartz countertops, custom cabinetry, stainless-steel appliances, a large center island, and a walk-in pantry—perfect for gatherings, meal prep, and daily living. The private primary suite serves as a relaxing retreat, thoughtfully separated from the secondary bedrooms. It includes a spa-inspired bath with dual vanities, a large walk-in shower, soaking tub, and an expansive walk-in closet. Additional bedrooms are generously sized, offering flexibility for guests, home office space, or multigenerational living. A dedicated laundry room and ample storage throughout enhance the home’s livability. Outdoor living is equally inviting, with a covered patio ideal for entertaining or enjoying peaceful Nevada evenings. The expansive one-acre lot provides room for customization, potential RV parking, and space to create your ideal outdoor oasis—all while taking in mountain and valley views. A 3-car garage completes the home, offering excellent space for vehicles, storage, or recreational gear. Bramwell Estates is known for its custom homes, wide streets, and tranquil setting, while still offering convenient access to Carson City, Lake Tahoe, and the Reno-Tahoe International Airport. The Luken plan delivers a refined yet functional lifestyle in one of Carson Valley’s most sought-after communities. This is a rare opportunity to enjoy modern single-level living with space, views, and timeless design in the heart of Northern Nevada.
Property Details
Price:
$1,220,000
MLS #:
260000496
Status:
Active
Beds:
3
Baths:
3
Type:
Single Family
Subtype:
Single Family Residence
Subdivision:
Bramwell Homestead
Listed Date:
Jan 15, 2026
Finished Sq Ft:
2,808
Total Sq Ft:
2,808
Lot Size:
43,560 sqft / 1.00 acres (approx)
Year Built:
2026
See this Listing
Schools
Elementary School:
Pinon Hills
Middle School:
Carson Valley
High School:
Douglas
Interior
Appliances
Dishwasher, Disposal, Gas Cooktop, Microwave, Oven, Trash Compactor
Bathrooms
3 Full Bathrooms
Cooling
Central Air
Fireplaces Total
1
Flooring
Carpet, Luxury Vinyl
Heating
Forced Air, Natural Gas
Laundry Features
Cabinets, Laundry Room, Washer Hookup
Exterior
Construction Materials
Insulation – Spray Foam, Insulation – Foam, Insulation – Batts, Insulation – Blown-In, Concrete, Frame, Glass, Stone Veneer, Stucco
Exterior Features
Rain Gutters
Other Structures
None
Parking Features
Attached, Garage, Garage Door Opener
Parking Spots
6
Roof
Composition
Security Features
Carbon Monoxide Detector(s), Smoke Detector(s)
Financial
Taxes
$941
Map
Community
- Address2789 Squires Street Minden NV
- SubdivisionBramwell Homestead
- CityMinden
- CountyDouglas
- Zip Code89423
Market Summary
Current real estate data for Single Family in Minden as of Feb 26, 2026
44
Single Family Listed
87
Avg DOM
380
Avg $ / SqFt
$1,048,913
Avg List Price
Property Summary
- Located in the Bramwell Homestead subdivision, 2789 Squires Street Minden NV is a Single Family for sale in Minden, NV, 89423. It is listed for $1,220,000 and features 3 beds, 3 baths, and has approximately 2,808 square feet of living space, and was originally constructed in 2026. The current price per square foot is $434. The average price per square foot for Single Family listings in Minden is $380. The average listing price for Single Family in Minden is $1,048,913.
Similar Listings Nearby
Courtesy of Ink Realty. Disclaimer: All data relating to real estate for sale on this page comes from the Broker Reciprocity (BR) of the Northern Nevada Regional MLS. Detailed information about real estate listings held by brokerage firms other than Ascent Property Group include the name of the listing broker. Neither the listing company nor Ascent Property Group shall be responsible for any typographical errors, misinformation, misprints and shall be held totally harmless. The Broker providing this data believes it to be correct, but advises interested parties to confirm any item before relying on it in a purchase decision. Copyright 2026. Northern Nevada Regional MLS. All rights reserved. 2789 Squires Street
Minden, NV


