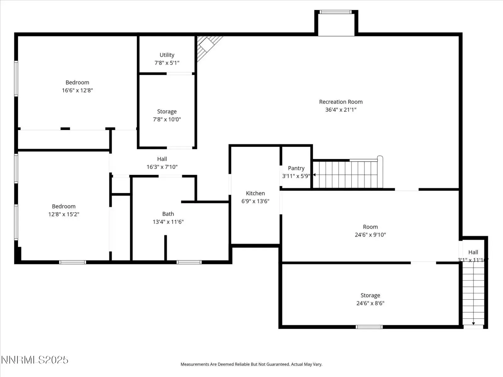
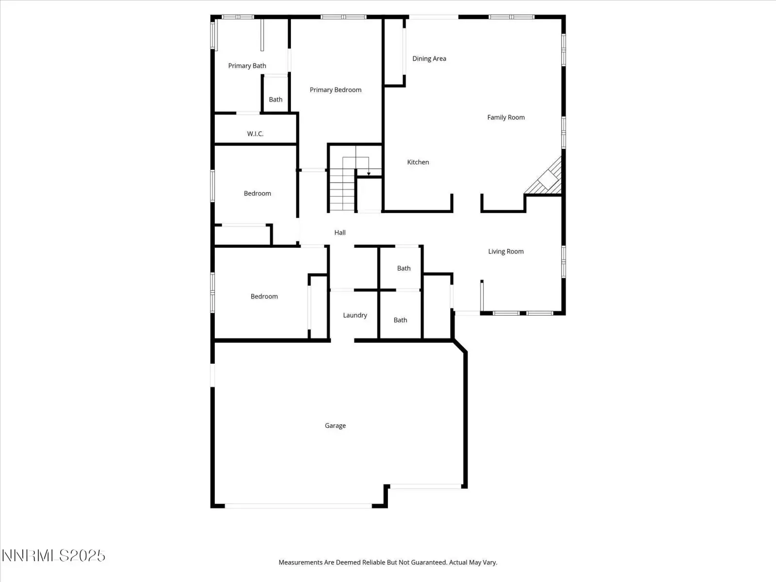
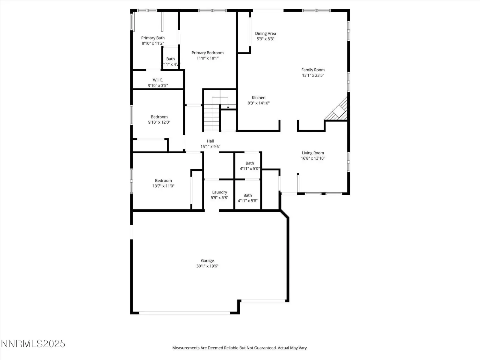
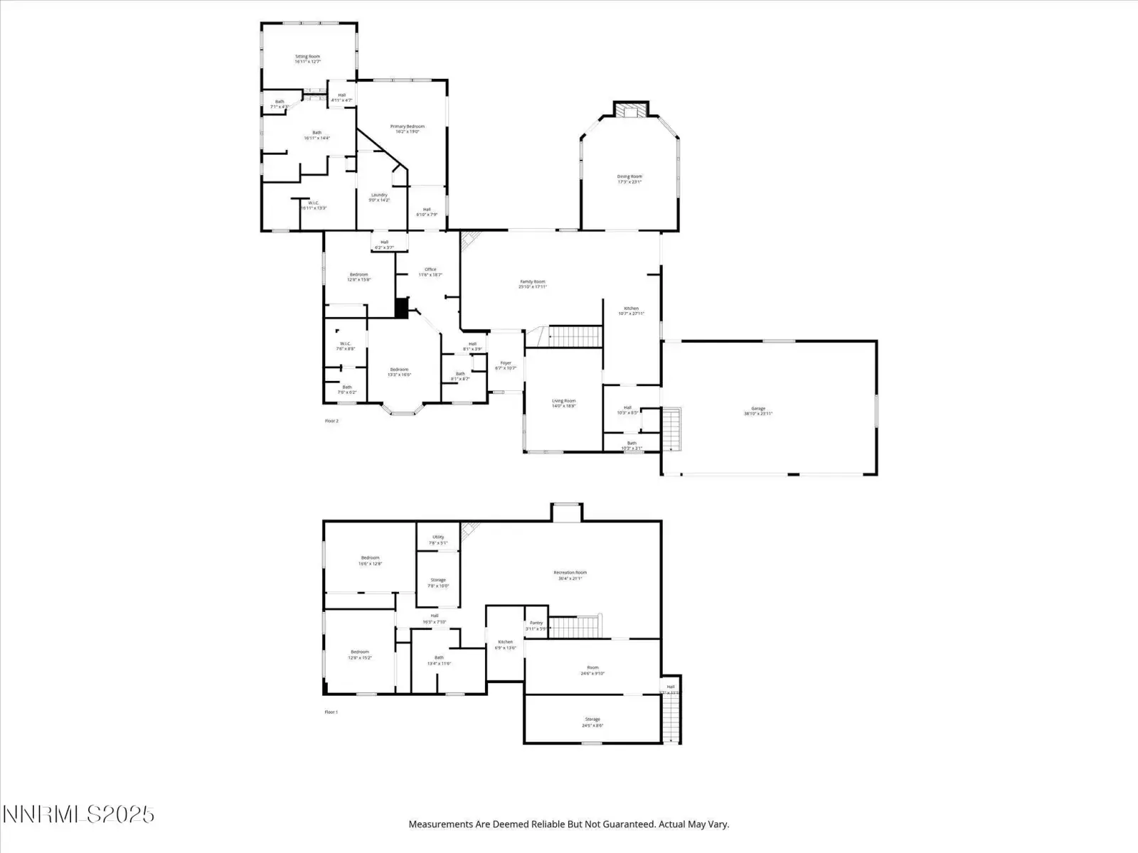
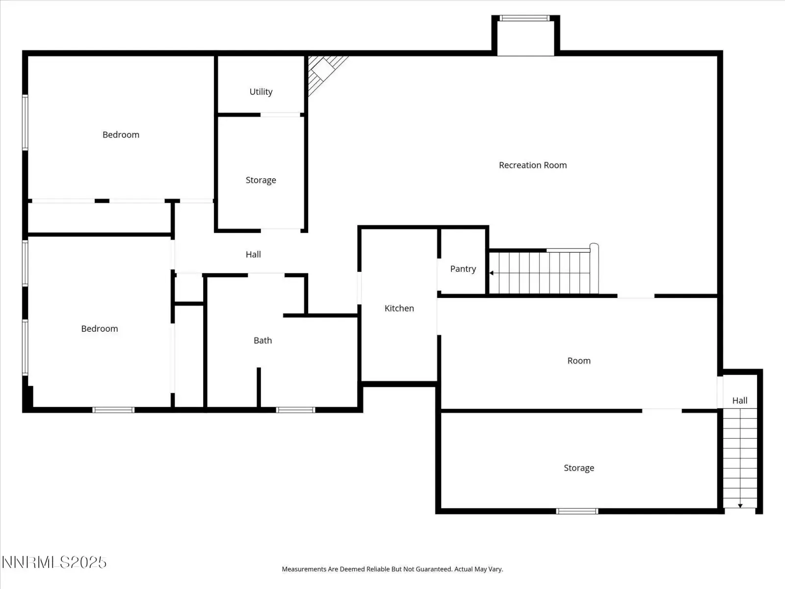
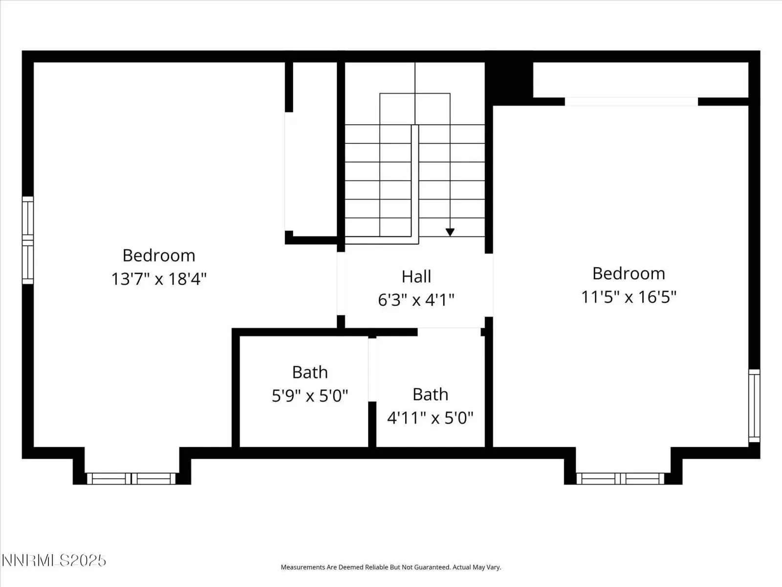
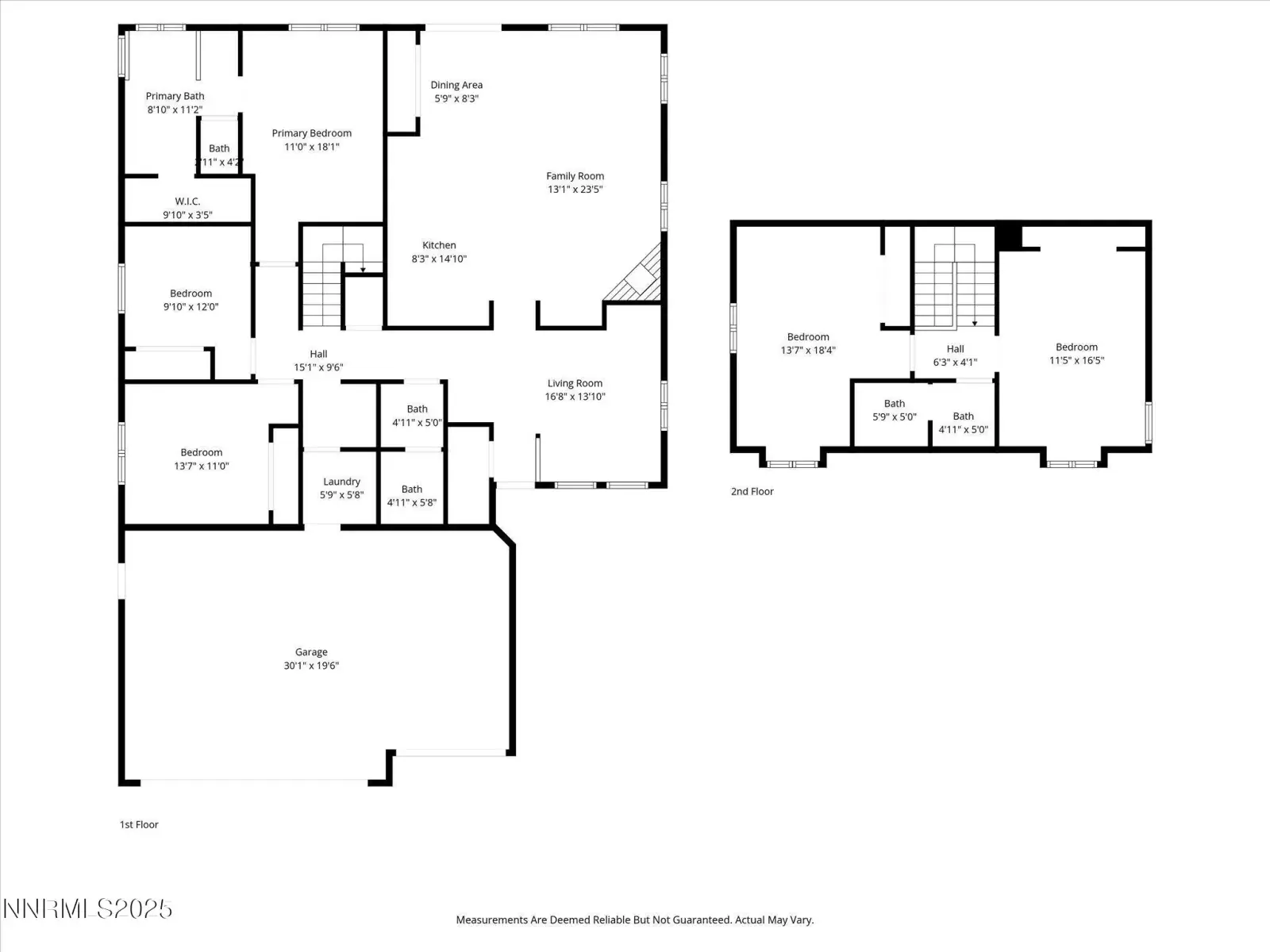
Welcome to this spacious and thoughtfully designed five bedroom, three bathroom home tucked into a quiet and friendly Lemmon Valley neighborhood. Light filled and inviting throughout, this property offers an ideal layout with three bedrooms including the primary suite on the main level. Two additional large bedrooms and a full bathroom are located upstairs, providing privacy and flexibility for guests, work from home needs, or multi generational living. The open kitchen is a standout, featuring newer KitchenAid appliances, abundant counter space, and generous storage. It is perfect for cooking, entertaining, or gathering with family and friends while they relax in the nearby living room with its cozy fireplace. The well appointed living areas flow comfortably from room to room. A three car garage offers plenty of parking and storage. Outside, the backyard deck is a peaceful and quiet place to enjoy outdoor dining or drinks with beautiful sunset views of Peavine Mountain. With nearby walking trails and bird watching at the Swan Lake Nature Study Area, outdoor recreation is close at hand. Conveniently located just minutes from shops and restaurants, plus the North Valleys Regional Park which offers a dog park, seasonal splash pad, soccer fields, baseball and softball areas, skate park, and playgrounds. Nearby BLM land is perfect for off road fun, and downtown Reno and the Reno Tahoe International Airport are only fifteen minutes away. The setting offers an ideal blend of serenity and accessibility, making this home a must-see!
Property Details
Price:
$515,000
MLS #:
250058814
Status:
Active
Beds:
5
Baths:
3
Type:
Single Family
Subtype:
Single Family Residence
Subdivision:
The Crest At Stonefield Phase 1 Unit 1
Listed Date:
Dec 5, 2025
Finished Sq Ft:
2,259
Total Sq Ft:
2,259
Lot Size:
7,405 sqft / 0.17 acres (approx)
Year Built:
2005
See this Listing
Schools
Elementary School:
Lemmon Valley
Middle School:
OBrien
High School:
North Valleys
Interior
Appliances
Dishwasher, Disposal, Gas Cooktop, Microwave, Refrigerator
Bathrooms
3 Full Bathrooms
Cooling
Central Air
Fireplaces Total
1
Flooring
Carpet, Tile
Heating
Fireplace(s), Forced Air, Natural Gas
Laundry Features
Cabinets, Laundry Room, Washer Hookup
Exterior
Association Amenities
Maintenance Grounds, Security
Construction Materials
Frame, Masonite
Exterior Features
Rain Gutters
Other Structures
None
Parking Features
Attached, Garage, Garage Door Opener
Parking Spots
3
Roof
Composition, Shingle
Security Features
Carbon Monoxide Detector(s), Keyless Entry, Smoke Detector(s)
Financial
HOA Fee
$30
HOA Frequency
Monthly
HOA Includes
Maintenance Grounds, Security
HOA Name
Stonefield II HOA
Taxes
$2,391
Map
Community
- Address8934 Sorcha Street Reno NV
- SubdivisionThe Crest At Stonefield Phase 1 Unit 1
- CityReno
- CountyWashoe
- Zip Code89506
Market Summary
Current real estate data for Single Family in Reno as of Dec 14, 2025
573
Single Family Listed
97
Avg DOM
409
Avg $ / SqFt
$1,248,011
Avg List Price
Property Summary
- Located in the The Crest At Stonefield Phase 1 Unit 1 subdivision, 8934 Sorcha Street Reno NV is a Single Family for sale in Reno, NV, 89506. It is listed for $515,000 and features 5 beds, 3 baths, and has approximately 2,259 square feet of living space, and was originally constructed in 2005. The current price per square foot is $228. The average price per square foot for Single Family listings in Reno is $409. The average listing price for Single Family in Reno is $1,248,011.
Similar Listings Nearby
Courtesy of Dickson Realty – Downtown. Disclaimer: All data relating to real estate for sale on this page comes from the Broker Reciprocity (BR) of the Northern Nevada Regional MLS. Detailed information about real estate listings held by brokerage firms other than Ascent Property Group include the name of the listing broker. Neither the listing company nor Ascent Property Group shall be responsible for any typographical errors, misinformation, misprints and shall be held totally harmless. The Broker providing this data believes it to be correct, but advises interested parties to confirm any item before relying on it in a purchase decision. Copyright 2025. Northern Nevada Regional MLS. All rights reserved. 8934 Sorcha Street
Reno, NV




























































