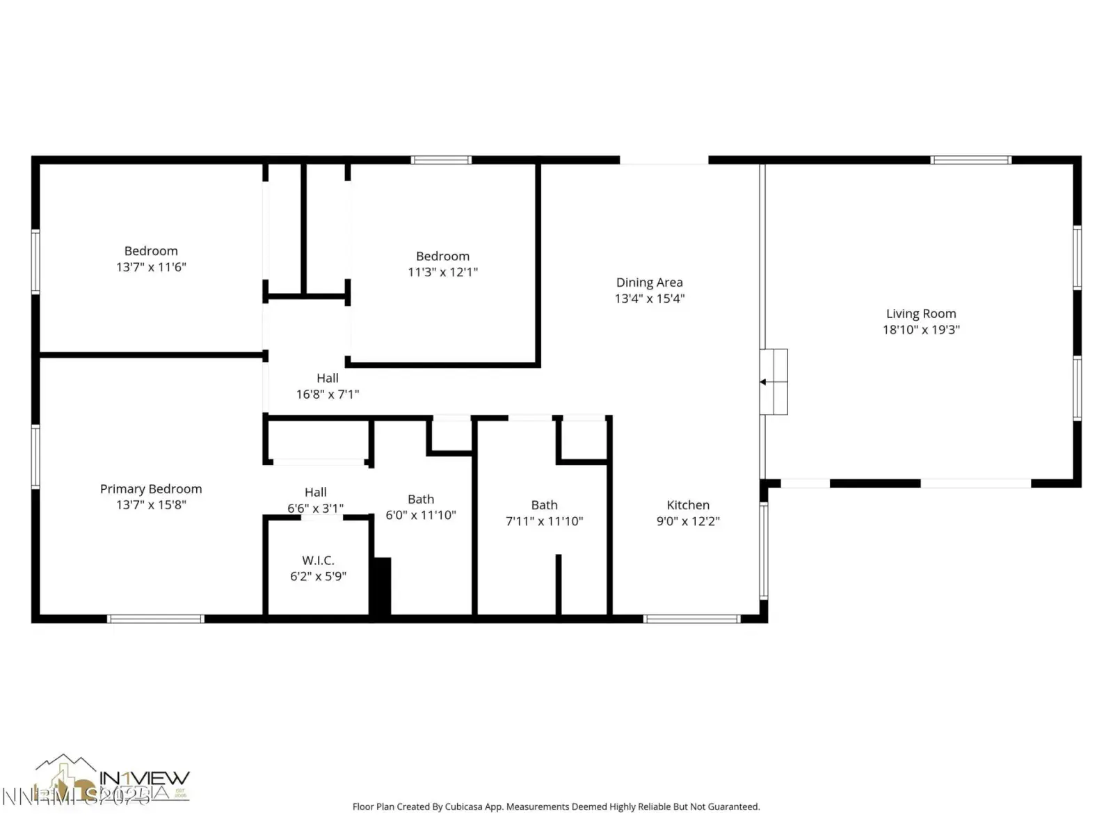
Three-bedroom, two-bath residence situated on approximately 1.2 acres, offering expansive views of surrounding mountains, mature trees, and nearby water features. The home features a light and open floor plan connecting the kitchen, living, and dining areas, with access to two balconies ideal for enjoying the elevated setting. Recent improvements include brand new carpeting throughout, fresh interior paint, and exterior paint, newer well pump and wiring. The property provides RV parking and generous space for recreational vehicles, equipment, or additional uses. The grounds include numerous mature trees and established fruit trees, creating a natural and private setting. Additional storage is available beneath the home with direct access from the garage. Positioned on a hillside, the property captures wide-ranging views in multiple directions. A durable metal roof was installed in 2019, and the HVAC system was replaced in 2024.
Property Details
Price:
$530,000
MLS #:
250059282
Status:
Active
Beds:
3
Baths:
2
Type:
Single Family
Subtype:
Single Family Residence
Subdivision:
Silver Knolls Ranch Estates 5
Listed Date:
Dec 22, 2025
Finished Sq Ft:
1,660
Total Sq Ft:
1,660
Lot Size:
52,185 sqft / 1.20 acres (approx)
Year Built:
1986
See this Listing
Schools
Elementary School:
Desert Heights
Middle School:
Cold Springs
High School:
North Valleys
Interior
Appliances
Dishwasher, Disposal, Dryer, Gas Cooktop, Gas Range, Microwave, Oven, Refrigerator, Washer
Bathrooms
2 Full Bathrooms
Cooling
Evaporative Cooling
Flooring
Carpet, Laminate, Wood
Heating
Forced Air, Propane
Laundry Features
In Bathroom, Laundry Area, Shelves, Washer Hookup
Exterior
Construction Materials
Wood Siding
Exterior Features
Balcony, Rain Gutters
Other Structures
Shed(s)
Parking Features
Garage, RV Access/Parking
Parking Spots
6
Roof
Metal
Security Features
Smoke Detector(s)
Financial
Taxes
$1,996
Map
Community
- Address10455 San Fernando Road Reno NV
- SubdivisionSilver Knolls Ranch Estates 5
- CityReno
- CountyWashoe
- Zip Code89508
Market Summary
Current real estate data for Single Family in Reno as of Dec 28, 2025
529
Single Family Listed
104
Avg DOM
414
Avg $ / SqFt
$1,278,446
Avg List Price
Property Summary
- Located in the Silver Knolls Ranch Estates 5 subdivision, 10455 San Fernando Road Reno NV is a Single Family for sale in Reno, NV, 89508. It is listed for $530,000 and features 3 beds, 2 baths, and has approximately 1,660 square feet of living space, and was originally constructed in 1986. The current price per square foot is $319. The average price per square foot for Single Family listings in Reno is $414. The average listing price for Single Family in Reno is $1,278,446.
Similar Listings Nearby
Courtesy of Coldwell Banker Select Reno. Disclaimer: All data relating to real estate for sale on this page comes from the Broker Reciprocity (BR) of the Northern Nevada Regional MLS. Detailed information about real estate listings held by brokerage firms other than Ascent Property Group include the name of the listing broker. Neither the listing company nor Ascent Property Group shall be responsible for any typographical errors, misinformation, misprints and shall be held totally harmless. The Broker providing this data believes it to be correct, but advises interested parties to confirm any item before relying on it in a purchase decision. Copyright 2025. Northern Nevada Regional MLS. All rights reserved. 10455 San Fernando Road
Reno, NV




































