Welcome to easy, single-level living in Miner’s Village, a sought-after 55+ community within Double Diamond Ranch in desirable South Reno. This beautifully maintained home offers three bedrooms, two bathrooms, and just under 2,000 square feet of comfortable living space designed for everyday enjoyment and effortless entertaining. Truly move-in ready, the home has been freshly painted throughout and features brand-new carpet along with extensive electrical updates, including all new switches, outlets, and plates, energy-efficient recessed ceiling lighting, and updated bathroom light fixtures. Safety and convenience have been thoughtfully addressed with replaced smoke and carbon monoxide detectors and new batteries installed. Major system upgrades provide peace of mind with a new furnace, ducting, and air conditioning installed in 2024, plus a new dishwasher and garage door opener added in fall 2025. The primary suite offers newly installed built-in cabinetry for extra storage. A brand-new 55″ wall-mounted flat-screen TV and sound bar in the family room are also included. Step outside to a private backyard with a covered patio—perfect for relaxing. Plus, the HOA maintains the front yard landscaping, allowing for low-maintenance living. Residents enjoy access to a community clubhouse with a gym, pool, and hot tub, along with an active social calendar featuring clubs, games, and gatherings. Ideally located close to walking and biking trails, nearby parks, and convenient shopping, this home offers the perfect blend of comfort, community, and easy living in one of South Reno’s most desirable 55+ neighborhoods.
Property Details
Price:
$625,000
MLS #:
260000549
Status:
Active
Beds:
3
Baths:
2
Type:
Single Family
Subtype:
Single Family Residence
Subdivision:
Double Diamond Ranch Village 13A
Listed Date:
Jan 15, 2026
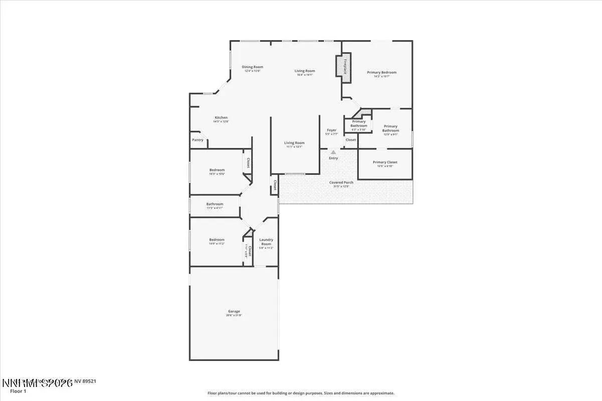
Finished Sq Ft:
1,943
Total Sq Ft:
1,943
Lot Size:
6,316 sqft / 0.15 acres (approx)
Year Built:
2000
See this Listing
Schools
Elementary School:
Double Diamond
Middle School:
Depoali
High School:
Damonte
Interior
Appliances
Dishwasher, Disposal, Gas Range, Microwave, Refrigerator
Bathrooms
2 Full Bathrooms
Cooling
Central Air
Fireplaces Total
1
Flooring
Carpet, Ceramic Tile, Laminate
Heating
Forced Air, Natural Gas
Laundry Features
Cabinets, Laundry Room, Washer Hookup
Exterior
Association Amenities
Clubhouse, Fitness Center, Gated, Parking, Pool, Spa/Hot Tub
Community
55+
Construction Materials
Stucco
Exterior Features
Rain Gutters
Other Structures
None
Parking Features
Attached, Garage, Garage Door Opener
Parking Spots
2
Roof
Pitched, Tile
Security Features
Carbon Monoxide Detector(s), Smoke Detector(s)
Financial
HOA Fee
$205
HOA Fee 2
$120
HOA Frequency
Monthly
HOA Includes
Maintenance Grounds, Snow Removal
HOA Name
Miners Village HOA
Taxes
$3,303
Map
Community
- Address1485 Wild Wolf Way Reno NV
- SubdivisionDouble Diamond Ranch Village 13A
- CityReno
- CountyWashoe
- Zip Code89521
Market Summary
Current real estate data for Single Family in Reno as of Feb 08, 2026
455
Single Family Listed
90
Avg DOM
415
Avg $ / SqFt
$1,208,057
Avg List Price
Property Summary
- Located in the Double Diamond Ranch Village 13A subdivision, 1485 Wild Wolf Way Reno NV is a Single Family for sale in Reno, NV, 89521. It is listed for $625,000 and features 3 beds, 2 baths, and has approximately 1,943 square feet of living space, and was originally constructed in 2000. The current price per square foot is $322. The average price per square foot for Single Family listings in Reno is $415. The average listing price for Single Family in Reno is $1,208,057.
Similar Listings Nearby
Courtesy of RE/MAX Professionals-Reno. Disclaimer: All data relating to real estate for sale on this page comes from the Broker Reciprocity (BR) of the Northern Nevada Regional MLS. Detailed information about real estate listings held by brokerage firms other than Ascent Property Group include the name of the listing broker. Neither the listing company nor Ascent Property Group shall be responsible for any typographical errors, misinformation, misprints and shall be held totally harmless. The Broker providing this data believes it to be correct, but advises interested parties to confirm any item before relying on it in a purchase decision. Copyright 2026. Northern Nevada Regional MLS. All rights reserved. 1485 Wild Wolf Way
Reno, NV



















































