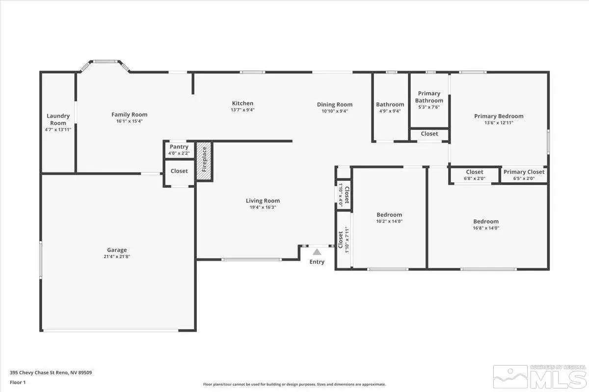
Welcome to 395 Chevy Chase, a equistly remodeled single level home in Southwest Reno on a large corner lot with mountain views. The great-room boasts a large fireplace, oak floors, large peninsula with quartz countertop, custom kitchen cabinets, new appliances and recessed lighting. The family room opens onto the covered patio, perfect for relaxing. Spacious owner suite with custom oversized tiled shower and large closet. Home also has 2 additional large bedrooms with oversized closets., Remodeled hall bathroom with shower over tub & single vanity. New windows. New heat pump HVAC. New light fixtures and hardware. Refinished hardwood floors. Landscaped front yard with RV parking. Large private backyard with mountain view. Close to Midtown, the airport, shops, restaurants and freeway access.
Property Details
Price:
$835,000
MLS #:
250001092
Status:
Active
Beds:
3
Baths:
2
Type:
Single Family
Subtype:
Single Family Residence
Listed Date:
Jul 31, 2025
Finished Sq Ft:
1,720
Total Sq Ft:
1,720
Lot Size:
16,117 sqft / 0.37 acres (approx)
Year Built:
1963
See this Listing
Schools
Elementary School:
Beck
Middle School:
Swope
High School:
Reno
Interior
Appliances
Dishwasher, Disposal, Gas Range, Refrigerator
Bathrooms
2 Full Bathrooms
Cooling
Central Air, Electric, Refrigerated
Fireplaces Total
1
Flooring
Ceramic Tile, Wood
Heating
Electric, Forced Air
Laundry Features
Cabinets, Laundry Area, Laundry Room
Exterior
Construction Materials
Wood Siding
Exterior Features
None
Parking Features
Attached, Garage, Garage Door Opener, RV Access/Parking
Parking Spots
2
Roof
Composition, Pitched, Shingle
Security Features
Smoke Detector(s)
Financial
Taxes
$1,717
Map
Community
- Address395 Chevy Chase Street Reno NV
- CityReno
- CountyWashoe
- Zip Code89509
Market Summary
Current real estate data for Single Family in Reno as of Oct 24, 2025
704
Single Family Listed
87
Avg DOM
411
Avg $ / SqFt
$1,245,860
Avg List Price
Property Summary
- 395 Chevy Chase Street Reno NV is a Single Family for sale in Reno, NV, 89509. It is listed for $835,000 and features 3 beds, 2 baths, and has approximately 1,720 square feet of living space, and was originally constructed in 1963. The current price per square foot is $485. The average price per square foot for Single Family listings in Reno is $411. The average listing price for Single Family in Reno is $1,245,860.
Similar Listings Nearby
Courtesy of RE/MAX Professionals-Reno. Disclaimer: All data relating to real estate for sale on this page comes from the Broker Reciprocity (BR) of the Northern Nevada Regional MLS. Detailed information about real estate listings held by brokerage firms other than Ascent Property Group include the name of the listing broker. Neither the listing company nor Ascent Property Group shall be responsible for any typographical errors, misinformation, misprints and shall be held totally harmless. The Broker providing this data believes it to be correct, but advises interested parties to confirm any item before relying on it in a purchase decision. Copyright 2025. Northern Nevada Regional MLS. All rights reserved. 395 Chevy Chase Street
Reno, NV









































