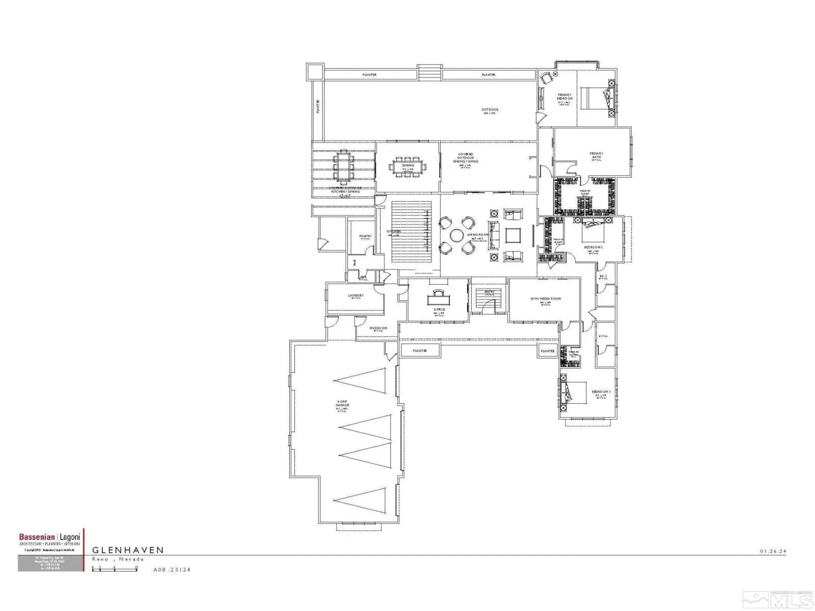
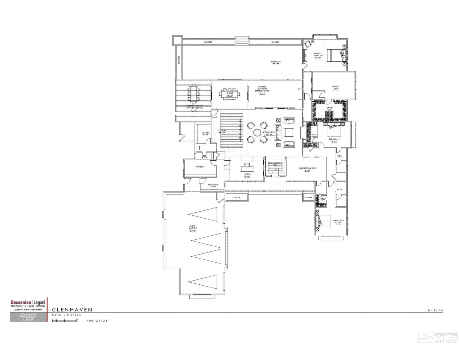
Welcome to 19 Glenhaven Dr, an expansive 2.5-acre homesite graced with breathtaking mountain views, at Reno’s most prestigious new custom home community. For this unique buy-and-build opportunity, the homesite is paired with permit-ready plans for a 4,366-sqft custom residence and a skilled project team ready to begin construction quickly. Priced at $1.4M, the homesite comes complete with public water, sewer, natural gas, and electric hook-ups in place for your convenience., This uncommon property was hand-selected by the builder, architect, and project developer as the canvas for a bespoke 3-bedroom, 3.5-bathroom home inspired by sprawling Napa-stye ranch estates. The home features a gym/media room, an office that can easily convert to an additional en-suite bedroom, a covered outdoor kitchen, full landscaping, and an attached 4-car garage. Grand, vaulted spaces lift the living areas, allowing natural light to filter throughout the home, with sliding glass doors, oversized windows, and indoor-outdoor spaces that flow harmoniously. The use of simple and timeless modern materials such as light sand stucco finish, honed limestone, and standing-seam metal roofs aid to reinforce the agrarian character of the design. Cross-gabled forms provide an understated elegance for a relaxing, private refuge. This project represents an exclusive opportunity for the purchaser to work with one of Reno’s most esteemed custom homebuilders. With plans already Design Committee-approved and ready for permit submission, construction may begin quickly. The construction estimate for this one-of-a-kind residence is $3,475,000, subject to specific conditions and purchaser modifications. The total anticipated investment for this project is estimated at $4,875,000. Embrace the allure of modern luxury living in peaceful surroundings at Reno’s most exciting new private community. Please contact us to explore this exclusive buy-and-build package and make your mark at Glenhaven.
Property Details
Price:
$1,400,000
MLS #:
240012638
Status:
Active
Beds:
0
Baths:
0
Type:
Land
Listed Date:
Jul 26, 2024
Lot Size:
108,900 sqft / 2.50 acres (approx)
See this Listing
Schools
Elementary School:
Lenz
Middle School:
Marce Herz
High School:
Galena
Interior
Exterior
Financial
HOA Fee
$350
HOA Frequency
Monthly
HOA Name
Glenhaven HOA
Taxes
$4,280
Map
Community
- Address19 Glenhaven Drive Reno NV
- CityReno
- CountyWashoe
- Zip Code89511
Market Summary
Property Summary
- 19 Glenhaven Drive Reno NV is a Land for sale in Reno, NV, 89511. It is listed for $1,400,000 and features 3 acres.
Similar Listings Nearby
Courtesy of Compass. Disclaimer: All data relating to real estate for sale on this page comes from the Broker Reciprocity (BR) of the Northern Nevada Regional MLS. Detailed information about real estate listings held by brokerage firms other than Ascent Property Group include the name of the listing broker. Neither the listing company nor Ascent Property Group shall be responsible for any typographical errors, misinformation, misprints and shall be held totally harmless. The Broker providing this data believes it to be correct, but advises interested parties to confirm any item before relying on it in a purchase decision. Copyright 2026. Northern Nevada Regional MLS. All rights reserved. 19 Glenhaven Drive
Reno, NV

























