Warm and timeless Tahoe townhome offering single-story living, lake and mountain views, corner unit, plus a dedicated boat slip with quick lake access!This furnished home showcases extensive owner improvements, including a gas stovetop/oven and microwave, Kitchen Mart cabinetry, granite counters, beverage refrigerator, and enhanced lighting with can lights and under-counter lighting.The living area features a gas fireplace with granite chiseled-edge hearth, river rock accent walls, recessed lighting, and a custom Sugar Pine mantle with matching wall shelves. Enjoy hardwood floors, carpet in select areas, mirrored closet doors with ample storage space, and a secure owner’s cabinet in the primary closet.Both bathrooms have been remodeled with a rustic esthetic, including tile flooring and one has a spa-style rainforest shower with multiple shower heads. Additional conveniences include a stackable washer/dryer with adjoining storage, linen closet, insulated patio storage shed, and a "Grillzebo" with BBQ on the spacious paver patioperfect for enjoying the views of Lake Tahoe!Located just steps from the Lake, Tahoe Keys Pavillion and amenities, including a gated outdoor pool, year-round indoor heated pool & spa, pickleball courts, volleyball courts, playground, private beach, and beautifully maintained grounds. This is an exceptional opportunity to enjoy the Tahoe Keys lifestyle in an upgraded, move-in-ready home.
Property Details
Price:
$699,000
MLS #:
142357
Status:
Active Pending
Beds:
2
Baths:
2
Type:
Condo
Subtype:
Townhouse
Neighborhood:
tahoekeys
Listed Date:
Dec 1, 2025
Finished Sq Ft:
968
Lot Size:
1,307 sqft / 0.03 acres (approx)
Year Built:
1966
See this Listing
Schools
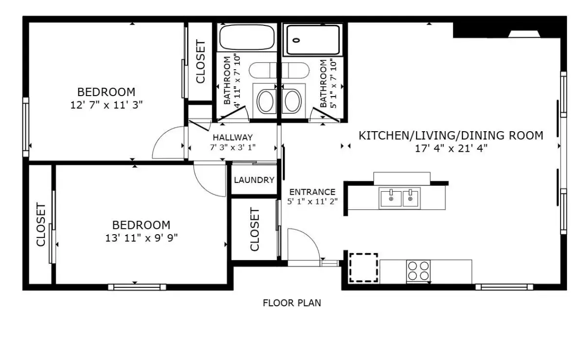
Interior
Exterior
Financial
Map
Community
- Address357 Ala wai Boulevard 212 South Lake Tahoe CA
- NeighborhoodTahoe Keys
- CitySouth Lake Tahoe
- CountyEl Dorado
- Zip Code96150
Market Summary
Current real estate data for Condo in South Lake Tahoe as of Jan 10, 2026
37
Condo Listed
192
Avg DOM
626
Avg $ / SqFt
$942,081
Avg List Price
Property Summary
- 357 Ala wai Boulevard 212 South Lake Tahoe CA is a Condo for sale in South Lake Tahoe, CA, 96150. It is listed for $699,000 and features 2 beds, 2 baths, and has approximately 968 square feet of living space, and was originally constructed in 1966. The current price per square foot is $722. The average price per square foot for Condo listings in South Lake Tahoe is $626. The average listing price for Condo in South Lake Tahoe is $942,081.
Similar Listings Nearby
Courtesy of Kaylin Culver of RE/MAX Gold – SLT. Disclaimer: All data relating to real estate for sale on this page comes from the Broker Reciprocity (BR) of the South Tahoe Association of Realtors. Detailed information about real estate listings held by brokerage firms other than Ascent Property Group include the name of the listing broker. Neither the listing company nor Ascent Property Group shall be responsible for any typographical errors, misinformation, misprints and shall be held totally harmless. The Broker providing this data believes it to be correct, but advises interested parties to confirm any item before relying on it in a purchase decision. Copyright 2026. South Tahoe Association of Realtors. All rights reserved. 357 Ala wai Boulevard 212
South Lake Tahoe, CA







































