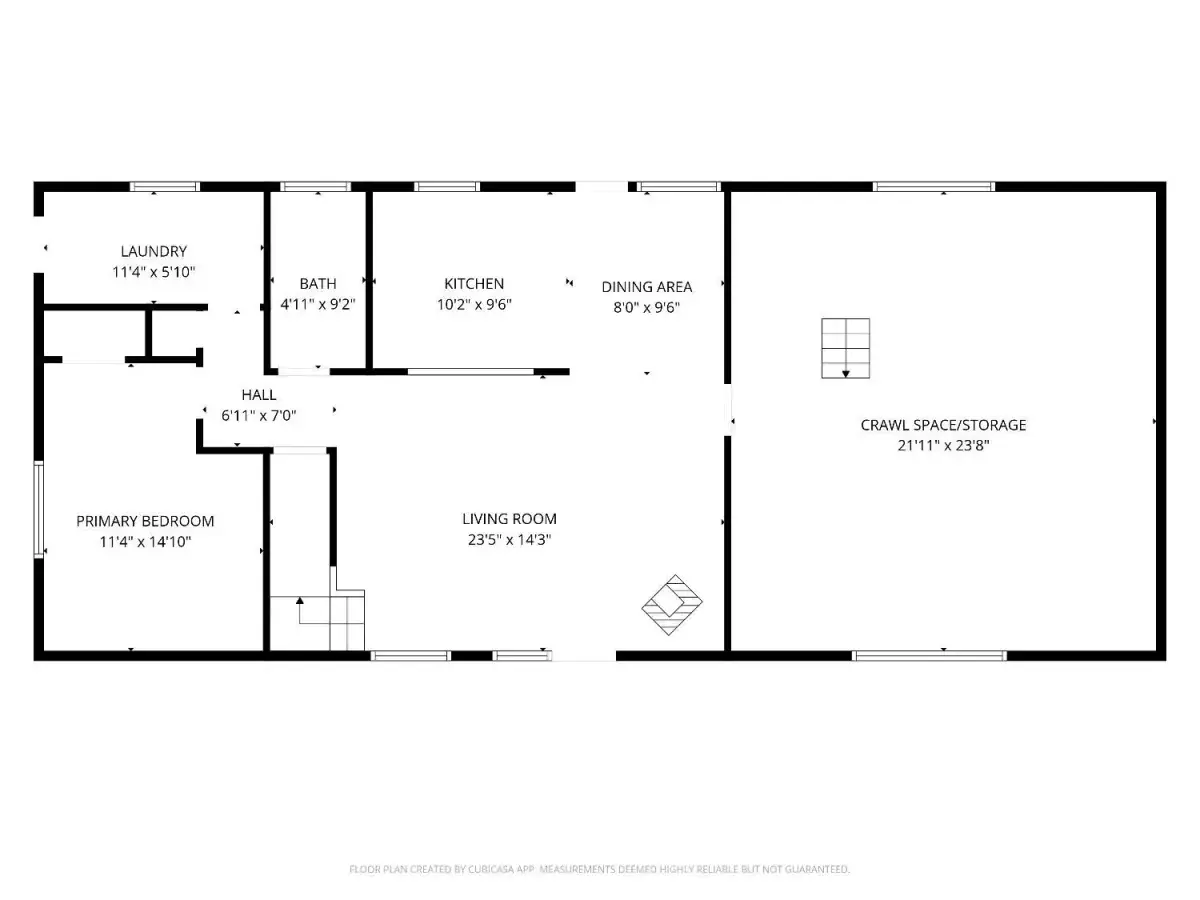
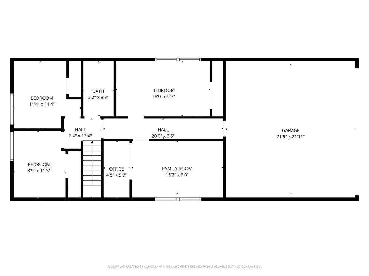
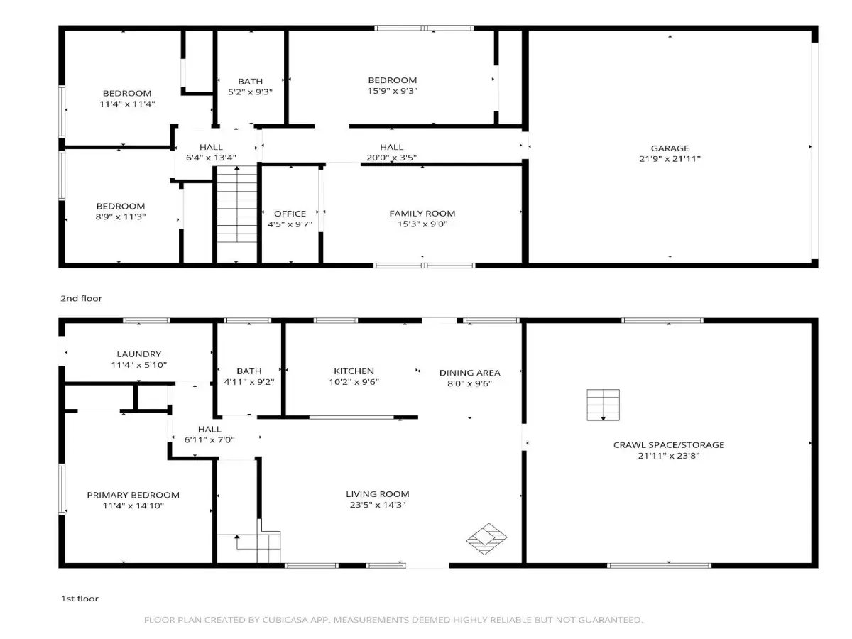
Beautiful forest setting for this 5 bedroom 2 bath home located in the highly desirable Montgomery Estates neighborhood which is close to the lake, beaches, skiing and trails. Located on a quiet cul-de-sac with CA Conservancy land next door and across the street, there is a feeling of privacy as you enjoy the forest setting from the side and wrap around decks. Lots of mountain feel with the open beam pine ceilings throughout. The living room has great forest views through the new glass French doors, a freestanding gas fireplace and opens to the kitchen dining area. All new brushed stainless steel appliances in the kitchen and engineered hardwood flooring on this first floor level. There is one bedroom and updated full bath as well as a large laundry area on this first floor level and then upstairs 4 bedrooms and 1 updated full bath. One of these 4 bedrooms is presently set up as a small family room area. At the end of the hallway is the access to the oversized 2 car garage with lots of room for storage. And did we mention storage? Off of the kitchen there is a doorway to a 528 SF storage area with a 528 SF unfinished basement below which has the potential for possible conversion to a separate studio, family room, game room, or master suite. So many possibilities for living area expansion or ready to enjoy just as it is. The owners have the home as a successful permitted hosted vacation rental with full vacation rental potential for the entire home. This well maintained home has had many upgrades including a new 50 year composition roof in May 2024 and is perfect for either a new primary residence or second home.
Property Details
Price:
$799,000
MLS #:
142441
Status:
Active
Beds:
5
Baths:
2
Type:
Single Family
Subtype:
Single Family Residence
Neighborhood:
montgomeryestates
Listed Date:
Jan 16, 2026
Finished Sq Ft:
1,584
Lot Size:
10,454 sqft / 0.24 acres (approx)
Year Built:
1972
See this Listing
Schools
Interior
Exterior
Financial
Map
Community
- Address1221 Goldpan Court South Lake Tahoe CA
- NeighborhoodMontgomery Estates
- CitySouth Lake Tahoe
- CountyEl Dorado
- Zip Code96150
Market Summary
Current real estate data for Single Family in South Lake Tahoe as of Feb 19, 2026
94
Single Family Listed
126
Avg DOM
558
Avg $ / SqFt
$1,385,479
Avg List Price
Property Summary
- 1221 Goldpan Court South Lake Tahoe CA is a Single Family for sale in South Lake Tahoe, CA, 96150. It is listed for $799,000 and features 5 beds, 2 baths, and has approximately 1,584 square feet of living space, and was originally constructed in 1972. The current price per square foot is $504. The average price per square foot for Single Family listings in South Lake Tahoe is $558. The average listing price for Single Family in South Lake Tahoe is $1,385,479.
Similar Listings Nearby
Courtesy of Madeleine Gutierrez of Coldwell Banker Select – LTB. Disclaimer: All data relating to real estate for sale on this page comes from the Broker Reciprocity (BR) of the South Tahoe Association of Realtors. Detailed information about real estate listings held by brokerage firms other than Ascent Property Group include the name of the listing broker. Neither the listing company nor Ascent Property Group shall be responsible for any typographical errors, misinformation, misprints and shall be held totally harmless. The Broker providing this data believes it to be correct, but advises interested parties to confirm any item before relying on it in a purchase decision. Copyright 2026. South Tahoe Association of Realtors. All rights reserved. 1221 Goldpan Court
South Lake Tahoe, CA








































