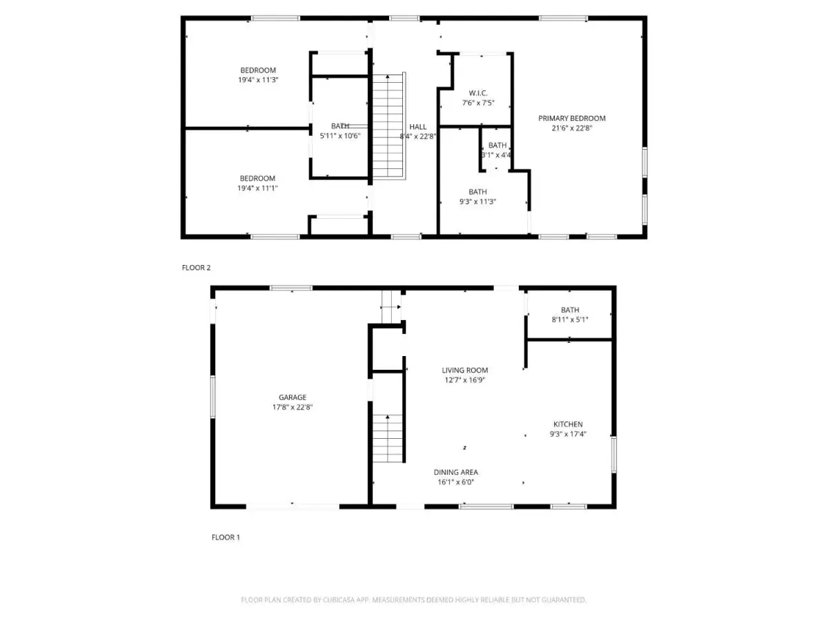
Stunning New Construction Near Lake Tahoe short term rental permit approved – Prime Location!Discover modern mountain living in this brand-new home, ideally located just half a mile from the lake and only 2 miles from Heavenly Ski Resort. New construction in this sought-after area is rare, don’t miss your chance to own a beautiful mountain modern retreat!This 3-bedroom, 2-bath home features a thoughtful layout with all bedrooms located upstairs for privacy and comfort. The main level offers an open-concept living room, dining area, and kitchenperfect for entertaining or relaxing after a day at the lake or on the slopes.Enjoy quality craftsmanship throughout, with high-end finishes, vaulted ceilings, and large windows that fill the home with natural light. The modern kitchen showcases sleek cabinetry, quartz countertops, and stainless-steel appliances. For year-round comfort, the home is equipped with efficient mini-split systems providing both heating and air conditioning.Step outside and take in the fresh mountain air and peaceful surroundings.Homes like thisespecially new construction in such a prime locationdon’t come around often. Call me today to schedule your private showing!
Property Details
Price:
$1,160,000
MLS #:
142308
Status:
Active
Beds:
3
Baths:
2.5
Type:
Single Family
Subtype:
Single Family Residence
Neighborhood:
bijou1
Listed Date:
Nov 5, 2025
Finished Sq Ft:
1,799
Lot Size:
4,792 sqft / 0.11 acres (approx)
Year Built:
2025
See this Listing
Schools
Interior
Exterior
Financial
Map
Community
- Address1101 Sonora Avenue South Lake Tahoe CA
- NeighborhoodBijou 1
- CitySouth Lake Tahoe
- CountyEl Dorado
- Zip Code96150
Market Summary
Current real estate data for Single Family in South Lake Tahoe as of Feb 19, 2026
94
Single Family Listed
125
Avg DOM
558
Avg $ / SqFt
$1,385,479
Avg List Price
Property Summary
- 1101 Sonora Avenue South Lake Tahoe CA is a Single Family for sale in South Lake Tahoe, CA, 96150. It is listed for $1,160,000 and features 3 beds, 3 baths, and has approximately 1,799 square feet of living space, and was originally constructed in 2025. The current price per square foot is $645. The average price per square foot for Single Family listings in South Lake Tahoe is $558. The average listing price for Single Family in South Lake Tahoe is $1,385,479.
Similar Listings Nearby
Courtesy of Kimberly Williams of Coldwell Banker Sel-Round Hill. Disclaimer: All data relating to real estate for sale on this page comes from the Broker Reciprocity (BR) of the South Tahoe Association of Realtors. Detailed information about real estate listings held by brokerage firms other than Ascent Property Group include the name of the listing broker. Neither the listing company nor Ascent Property Group shall be responsible for any typographical errors, misinformation, misprints and shall be held totally harmless. The Broker providing this data believes it to be correct, but advises interested parties to confirm any item before relying on it in a purchase decision. Copyright 2026. South Tahoe Association of Realtors. All rights reserved. 1101 Sonora Avenue
South Lake Tahoe, CA







































